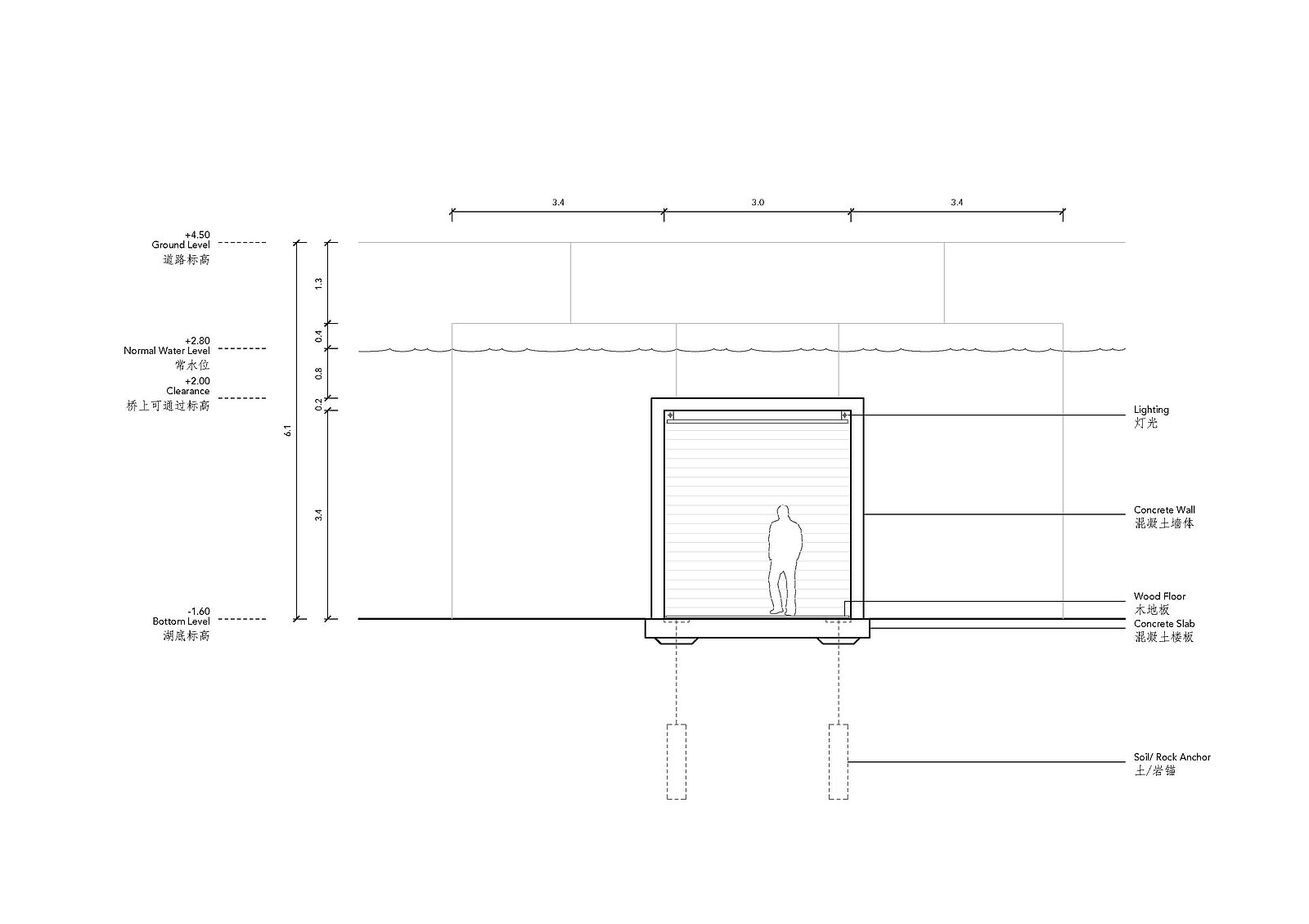
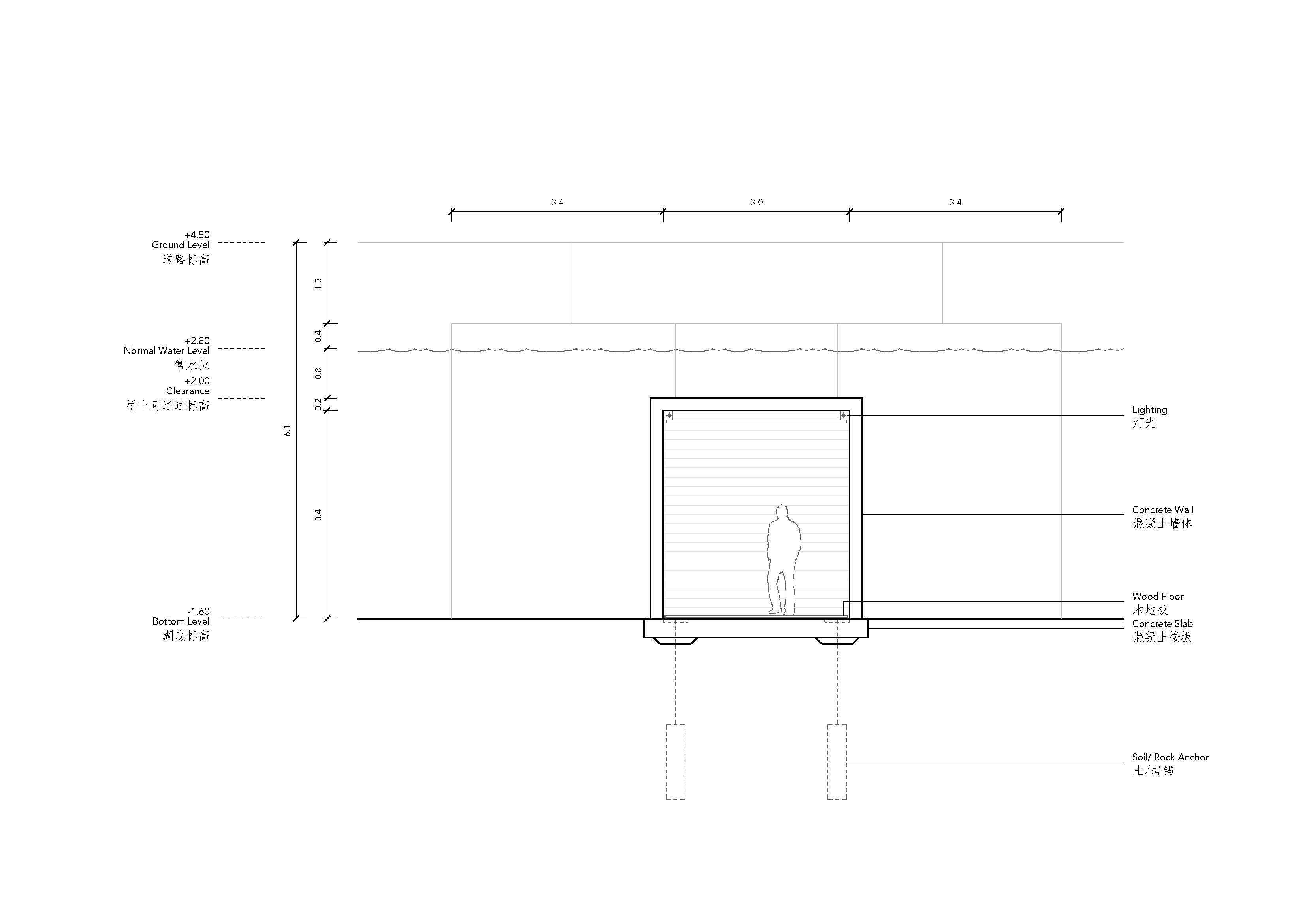
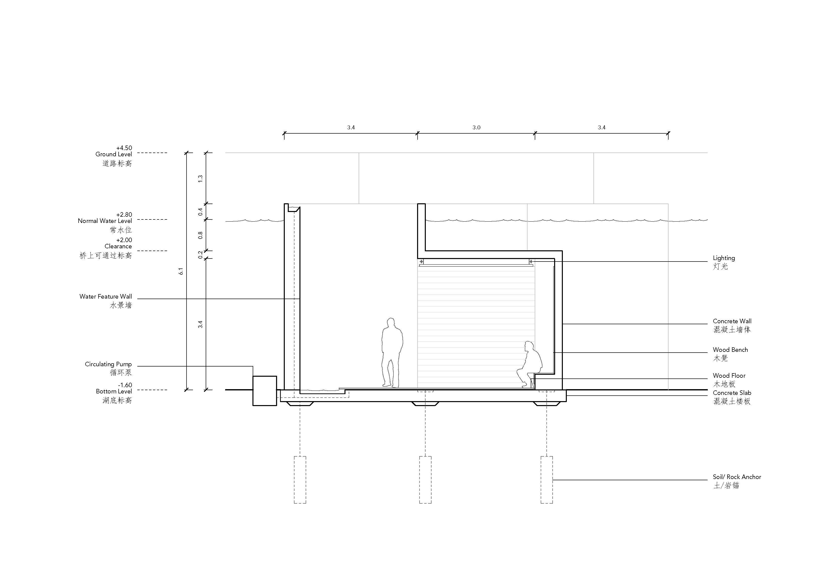
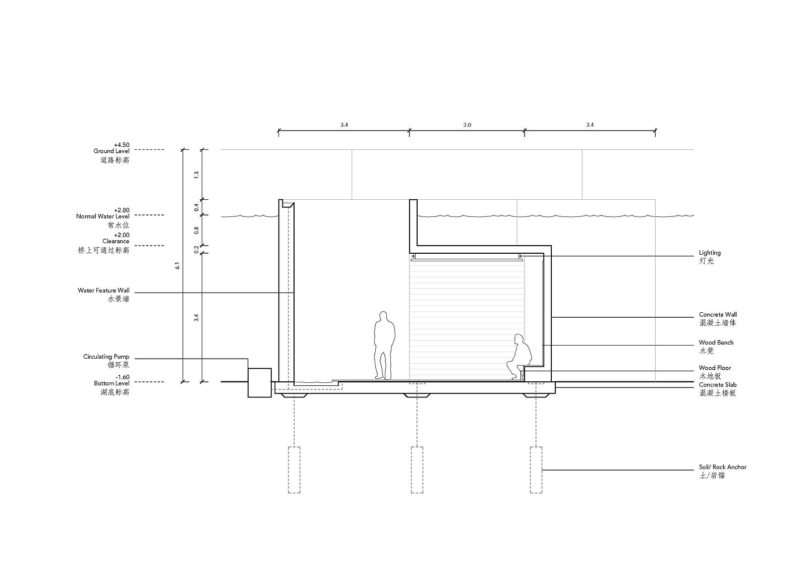
Underwater Bridge

Location:
Shanghai, CN
Scope:
Architecture
Program:
Pedestrian Bridge
Credit List:
Höweler + Yoon Architecture, Eric Höweler, J. Meejin Yoon
Year:
2018
Status:
Competition