Lipsey Architecture Center

Location:
Buffalo, NY
Scope:
New Construction & Adaptive Reuse
Program:
Museum, Visitor Center
Area:
16,400 sf
Credit List:
Höweler + Yoon Architecture, Eric Höweler, J. Meejin Yoon, Kyle Coburn, Justin Tan, Jonah Coe-Scharff, Jeffry Landman, Chris Behling, Ece Yetim, Rayshad Dorsey
AOR:
Höweler + Yoon Architecture
Year:
2026

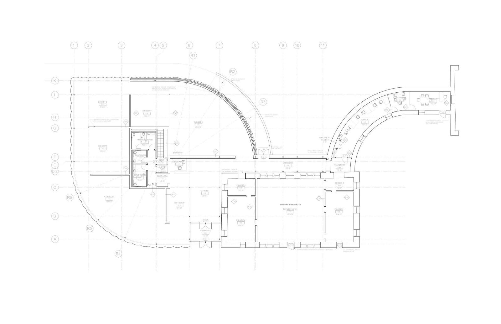
The Lipsey Architecture Center Buffalo is a new extension to the Nationally Registered Richardson Olmsted campus, providing a dedicated exhibition and gathering space for the celebration and exploration of the rich architectural legacy of Buffalo and Western New York. The project consists of two parts: an adaptive reuse of the ca.1875  “Male Kitchen” with its distinctively curved connector, and a new 8500 SF glass pavilion to mirror and complete the 19th century building.

The new LACB pavilion has been conceived in conversation with two of the great historical figures in American architecture: H.H. Richardson and F.L. Olmsted. The building is conceived as a “mirage”, with a unique system of 18’ tall scalloped glass panels that accentuate Richardson’s historic masonry structure, and function as an “optical device” that gradually reveals Olmsted’s rhythmic landscape.