Zero Athens Street

Location:
Boston, MA
Scope:
Architecture (new construction)
Program:
Residential
Dimension:
49,300 sf
Credit List:
Höweler + Yoon Architecture, Eric Höweler, J. Meejin Yoon, Kyle Coburn, Sophie Juneau, Caleb Hawkins, Ian Miley
AOR:
VMY Architects
Year:
2023

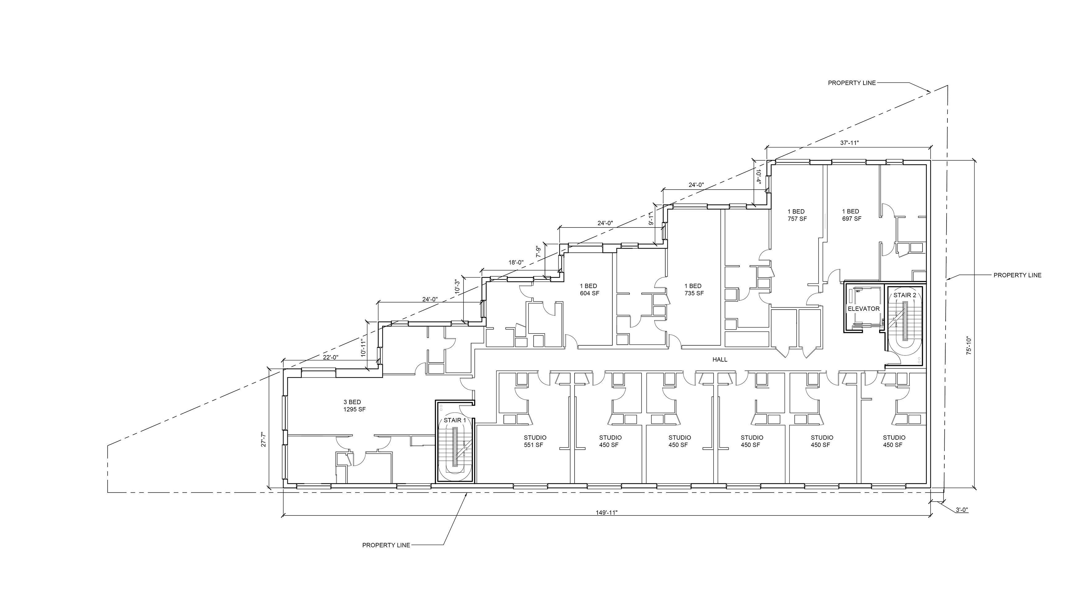
This new residential building occupies a triangular parcel within the West Broadway Neighborhood at the intersection of W 2nd Street (to the north) and Athens Street (to the south). The site's unique geometry presents the opportunity to return a significant amount of public space to the community. By pulling back the footprint approximately 40ft from the western tip, the site reintroduces approximately 800sf of public space at a prominent intersection. In addition, the northern edge of the proposal serrates in plan along W 2nd Street to offer a more generous sidewalk experience for pedestrians. This modulation also creates a series of pockets along the sidewalk, adding visual interest and the opportunity for trees and other plantings. 

The structure consists of 6 stories; 5 floors of residential units and a ground level of retail and building services. Approximately 2,600sf of retail space is in the westernmost portion of the plan, which addresses the public space and the primary circulation intersection of W 2nd Street and Athens Street. The ground level contains lobby spaces for the residential portion, accessible from W 2nd Street. Bike racks are accessible from Athens Street, and two parking spaces are located on the ground level for a building-wide car-share service. Floors 2 through 6 contain residential units with a mix of studio, one, two, and three bedrooms. A roof deck located above floor 6 will be available to residents. 
 

21 West 2nd Street is clad in handmade masonry tiles, a reference to the familiar, typical brick of its existing context; yet it establishes a more contemporary language through its scale and installation. The field of masonry tile on the upper floors is punctured by residential windows of three different proportions. These windows shift in alignment up the facade, adding a secondary level of articulation to the overall elevations.