MIT Museum

Location:
Cambridge, MA
Scope:
Architecture (new construction)
Program:
Museum
Area:
56,000 sf
Credit List:
Höweler + Yoon Architecture, Eric Höweler, J. Meejin Yoon, Haripriya Rangarajan, Jacob Bruce, Ching Ying Ngan, Neil Legband, Elle Gerderman, David Tarcali, Joane Feng | Exhibition Design: Studio Joseph
Year:
2022

The new MIT Museum in Kendall Square provides a window into MIT, a glimpse into the artifacts of research and the stories behind them. Located on the ground, second, and third floors of a new building, the museum anchors MIT’s East Campus and forms a new gateway to the institute.

The MIT Museum and the MIT Welcome Center frame the Gateway Plaza, presenting programs that interface with the public. The plaza is also an entry to the Kendall Square T subway station, the Institute’s main point of access to public transit. The museum’s grand stair gestures out across the plaza, extending the public museum program from the plaza up through three floors of the museum.

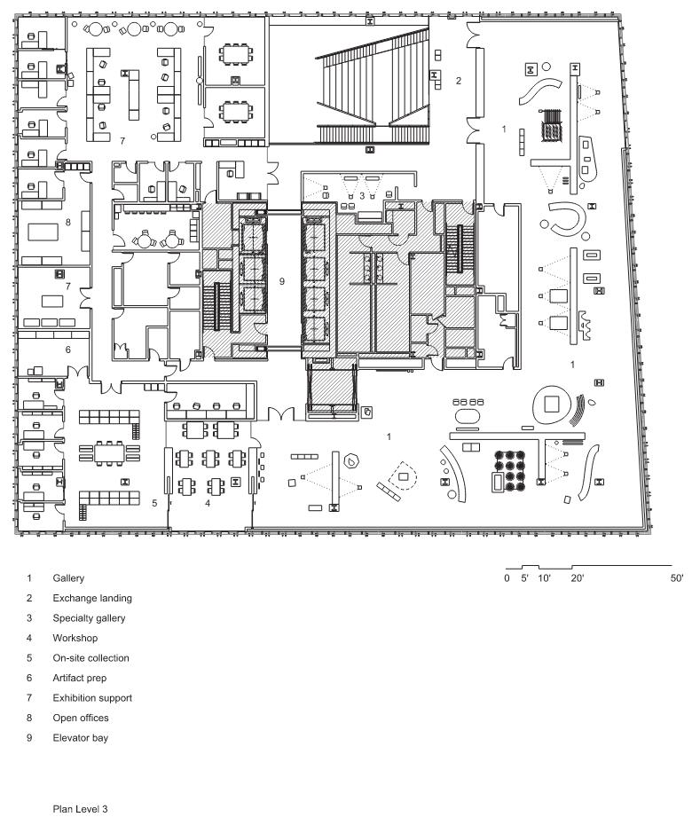
The museum’s gallery sequence forms a continuous spiral, connecting the pedestrian plaza and ground floor lobby to the second- and third floor galleries, and terminates in the museum collections.

This spiral organization dispenses with traditional front-of-house and back-of-house separations and instead offers new adjacencies through a ‘side-of-house’ placement of education and curatorial spaces along the length of the coiled gallery.  In moving to its new location, the Museum strategically wanted to increase the amount of learning and hands-on spaces. Adjacent to the galleries, the museum’s workshop, classroom, seminar, and Idea Hub spaces benefit from increased foot traffic and visibility.