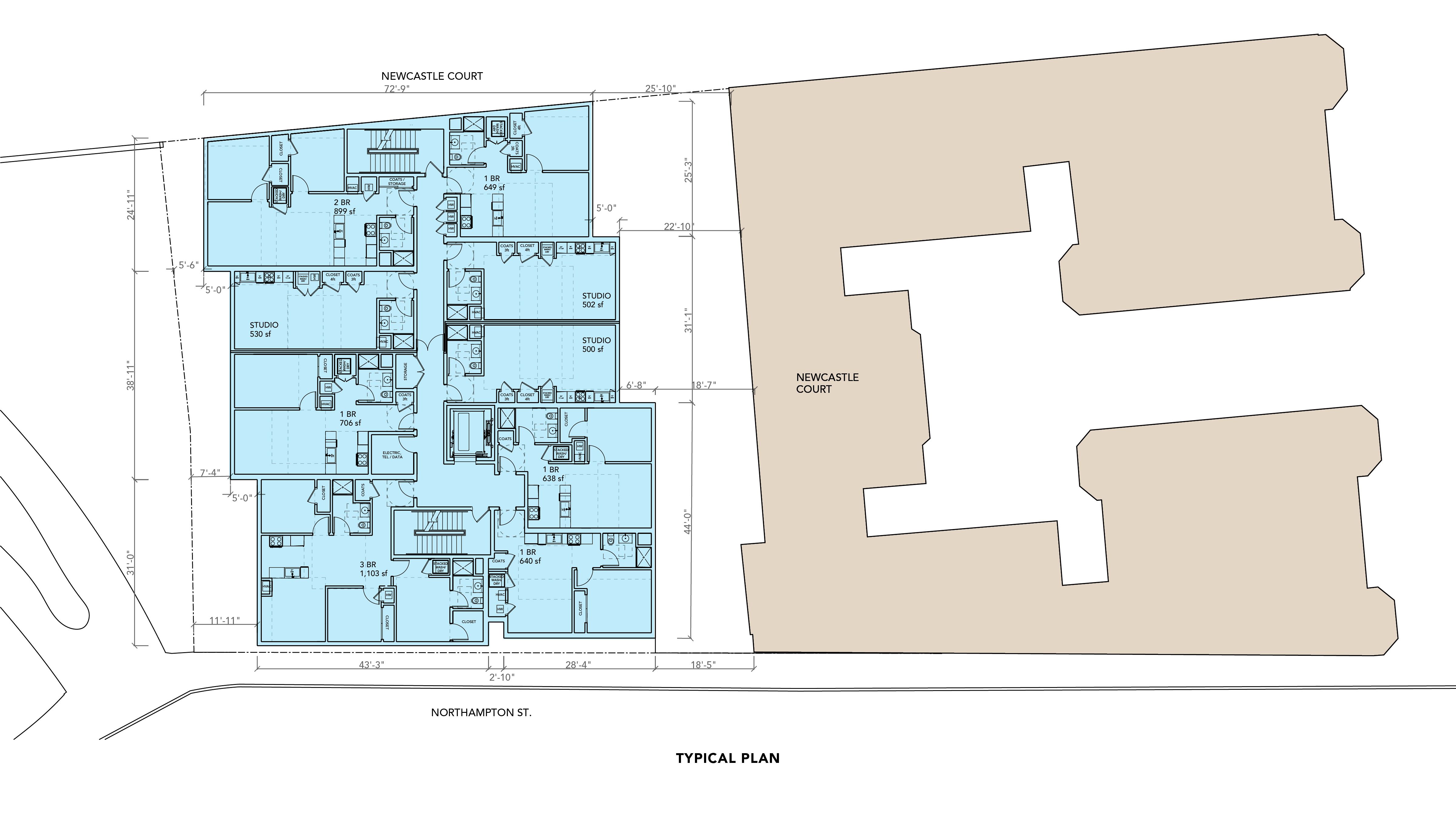
Northampton Residence (599 Columbus Ave)

Location:
Boston, MA
Scope:
Architecture (new construction)
Program:
Residential
Area:
40,000 sf
Credit List:
Höweler + Yoon Architecture, Eric Höweler, J. Meejin Yoon, Kyle Coburn
Year:
2025
Photo Credit:
Benjamin Kou

Northampton Residence is a 47-unit, mid-rise building in Roxbury. Formerly a 9,586 sf surface parking lot, the site is now a six-story, 40,000 sf wood-frame podium building. The moderate income units for home ownership are sited right off of the MBTA’s Massachusetts Ave station, nestled within the bike and pedestrian-friendly South West Corridor Park. A primary aim of the project is to support the return of displaced residents: priority for ownership will be offered to families who can document prior residency.

The calibrated facade is in visual dialog with its neighborhood context, borrowing scale and material palette from the surrounding historic buildings. Newcastle Court, Northampton’s immediate neighbor, inspired the rhythm for the building’s window pattern and massing subdivisions. The warm, ivory brick adds to the visual cohesion of the neighborhood, while projecting a contemporary expression through brick articulation.